€ 840 000
Ref: V3793

Casa o chalet en Torreblanca

Carrer Transversal, 08970 Sant Joan Despí (Barcelona), Espanya
61 Views

Description

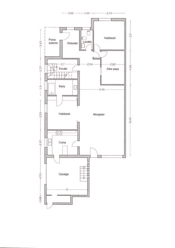
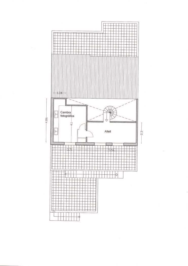
V3793 EXCLUSIVA APIALIA Fantàstica casa a reformar (1967). Tres plantes, amb jardí de 150m2, tres terrasses, plaça de pàrquing, soterrani. Residencial ... Sant Joan, amb orientació Nord-est. Molt assolellat ja que té 3 vents. L'estat estructural així com per dins és perfecte, es pot fer una petita reforma o emprendre una reforma total. Per només 850.000€ disposa d'un total de 347m2 de construcció + 150 de jardí. consta de 8 habitacions, totes dobles i 4 banys, amb cuina a reformar i diversos salons. Casa amb moltes possibilitats. Som contractistes, sol·licita'ns pressupost! excel·lent relació qualitat/preu. Aquesta és la casa dels teus somnis! Zona molt tranquil·la, però envoltada de col·legis, comerços per anar de compres, supermercats i restaurants per menjar bé. Comunicada a prop amb Tram per a connexió a Barcelona o bé tren. Ideal per a inversors i famílies. Vine a veure-la! . Preu venda: 840.000€ . . V3793 EXCLUSIVA APIALIA Fantástica casa a reformar (1967). Tres plantas, con jardin de 150m2, tres terrazas, plaza de parking, sotano. Residencial Sant Joan, con orientacion Nordeste. Muy soleado ya que tiene 3 vientos. El estado estructural así como por dentro es perfecto, se puede hacer una pequeña reforma o acometer una reforma total. Por sólo 850.000€, dispone de un total de 347m2 de construcción + 150 de jardin. consta de 8 habitaciones, todas dobles y 4 baños, con cocina a reformar y varios salones. Casa con muchas posibilidades. Somos contratistas, solicítanos presupuesto! excelente relación calidad/precio. Esta es la casa de tus sueños! Zona muy tranquila, pero rodeada de colegios, comercios para ir de compras, supermercados y restaurantes para comer bien. Comunicada cerca con Tram para conexión a Barcelona o bien tren. Ideal para inversores y familias. Ven a verla! . Precio venta: 840.000€ . . V3793 EXCLUSIVE APIALIA Fantastic house to reform (1967). Three floors, with a 150m2 garden, three terraces, parking space, basement. Residencial Sant Joan, with Northeast orientation. Very sunny since it has 3 winds. The structural state as well as the inside is perfect, you can make a small reform or undertake a total reform. For only € 850,000, it has a total of 347m2 of construction + 150 of garden. It consists of 8 bedrooms, all doubles and 4 bathrooms, with a kitchen to reform and several living rooms. House with many possibilities. We are contractors, ask us for a quote! Great value for the price. This is the house of your dreams! Very quiet area, but surrounded by schools, shops to go shopping, supermarkets and restaurants to eat well. Communicated nearby with Tram for connection to Barcelona or train. Ideal for investors and families. Come and see her! . Sale price: € 840,000 . . V3793 EXCLUSIVITÉ APIALIA Fantastique maison à réformer (1967). Trois étages, avec un jardin de 150m2, trois terrasses, parking, sous-sol. Residencial Sant Joan, avec orientation nord-est. Très ensoleillé car il a 3 vents. L'état structurel ainsi que l'intérieur est parfait, vous pouvez faire une petite réforme ou entreprendre une réforme totale. Pour seulement 850 000 €, elle totalise 347m2 de construction + 150 de jardin. Il se compose de 8 chambres, toutes doubles et 4 salles de bains, avec une cuisine à réformer et plusieurs salons. Maison avec de nombreuses possibilités. Nous sommes entrepreneurs, demandez-nous un devis ! Grande valeur pour le prix. C'est la maison de vos rêves! Quartier très calme, mais entouré d'écoles, de magasins pour faire du shopping, de supermarchés et de restaurants pour bien manger. Communiqué à proximité avec Tram pour connexion à Barcelone ou en train. Idéal pour investisseurs et familles. Venez la voir ! . Prix ??de vente : 840 000 € Show more

Features

Main info

House type: Chalet
Single room count: 8
Bathroom count: 4
Built area: 347

Certificates

Consumption:
E
211 KW h/m² Emission: E 44 Kg CO₂/m²

Qualities

Heating
Pantry
Terrace

Location

Is something wrong with the Ad?

Please let us know about it so we can correct it.