For sale tastefully renovated and well-maintained apartment in a historic house. Parking is included in the price.
The house is located in the histori ...cal center of Riga, was completely renovated and put into operation in January 2016 and has 19 apartments.
House and house extras - renovated house, front building, all communications, all the amenities, elevator available, windows in both sides of the house, closed stairwell, renovated staircase. staircase.
Territory - developed infrastructure, public transport, close to schools, kindergarten, close to markets, near the park, entrance from the street, convenient transport connections.
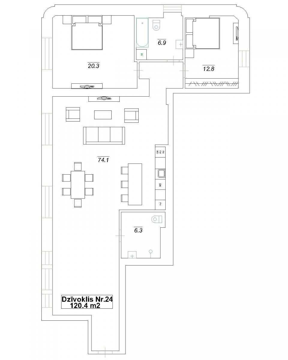
Planning - one room separated, kitchen combined with a living room.
Property and heating - city central heating.
Repairs and gradation of repairs - heavy repairs, wooden glass package windows, wooden door, wooden parquet floor, lighting built-in.
Bathroom - 2 bathroom combined with toilet, bath.
Продается со вкусом отремонтированная и ухоженная квартира в историческом доме. Парковка включена в цену.
Дом расположен в историческом центре Риги, был полностью отремонтирован и сдан в эксплуатацию в январе 2016 года и имеет 19 квартир.
Дом и экстры дома - pеставрированный дом, фасадный дом, все коммуникации, все удобства, лифт, окна на обе стороны, закрытая лестничная клетка, ремонт лестницы.
Территория - развитая инфраструктура, рядом общественный транспорт, рядом школа, детский садик, рядом магазины, рядом с парком, вход с улицы, удобное транспортное сообщение.
Планировка - одна комната изолирована, кухня объединена с гостинной.
Имущество и oтопление - центральное отопление.
Ремонт и градация ремонта - капитальный ремонт, деревянные стеклопакеты, деревянные двери, паркет, встроенные светильники.
Санузел - 2 санузелa, ванна.Show more
We use our own and third-party cookies, and similar technology, to remember your preferences, prepare statistics. If you continue browsing or click the "Continue browsing" button, you accept their use. Cookie policy