FINANCIACIÓN HASTA EL 100% MÁS GASTOS, SIN AVALISTAS HASTA EL 95%, FUNCIONARIOS 100%
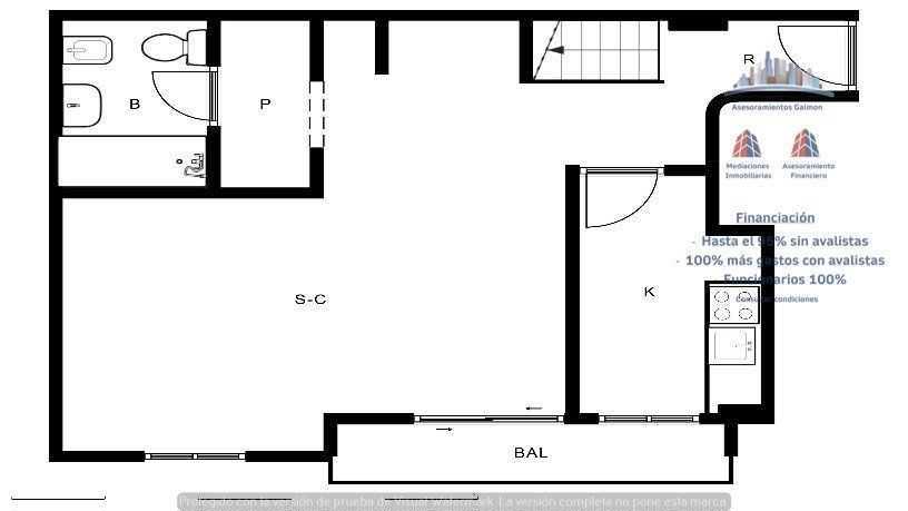
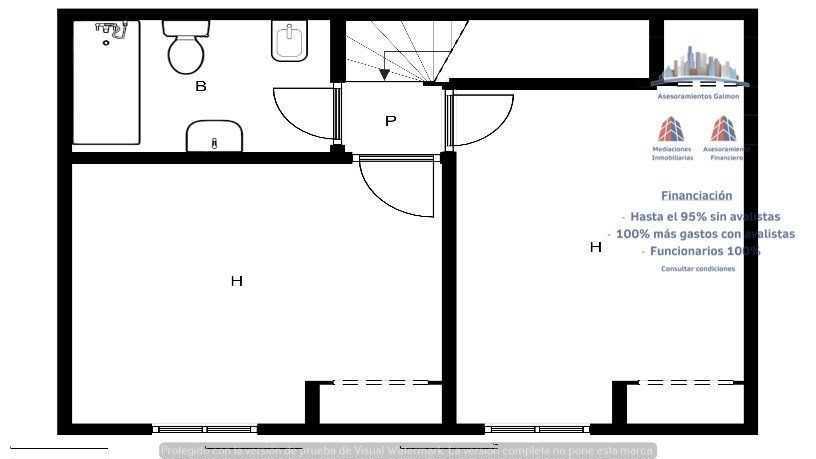
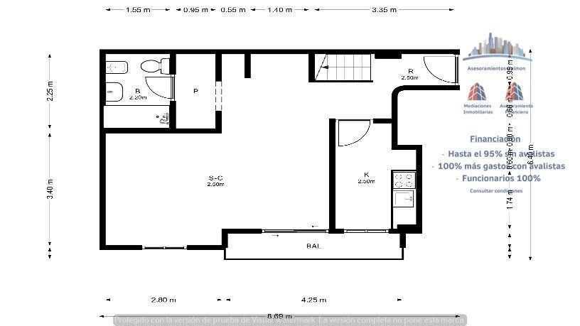
Piso en venta en Leganés, Madrid. Dispone de una superficie ...de 92 m² distribuidos en 2 plantas. La planta baja tiene un luminoso salón-comedor, cocina amueblada y 1 baño completo con bañera. La primera planta se distribuye en 2 habitaciones con techos abuhardillados y 1 baño con bañera. Cuenta con suelos de parquet, armarios empotrados y una terraza de 4m2. Está situado en el barrio de La Fortuna, cerca de comercios, restaurantes, supermercados, centros educativos, centros sanitarios, zonas verdes y paradas de autobús. Cuenta con fácil acceso a la R-5, la M-40 y la M-406. ¿Es lo que andabas buscando? Pasa a verlo. Te esperamos.
Leganés es un municipio que forma parte de la Comunidad de Madrid, situado al suroeste de la capital. Es una ciudad dormitorio ya que mucha gente trabaja en la capital, pero con el paso de los años ha ido desarrollando una oferta propia de servicios. Dota de buenas comunicaciones, al estar cerca de Madrid, a través de autopistas, autovías, ferrocarril, metro y autobuses. Como patrimonio, destacar el Hospital Psiquiátrico de Santa Isabel y el Cuartel de las Reales Guardias Valonas.Show more
We use our own and third-party cookies, and similar technology, to remember your preferences, prepare statistics. If you continue browsing or click the "Continue browsing" button, you accept their use. Cookie policy