€ 450 000
Ref: 84688

Piso en Centre

Carrer de Jaume Isern, 08302 Mataró (Barcelona), Espanya
71 Views

Description

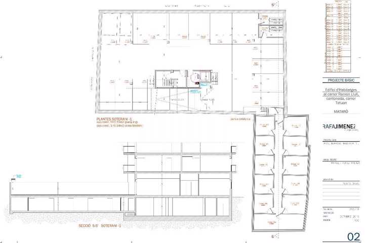
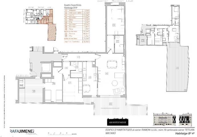
Presentación Promoción de viviendas y plazas de aparcamiento en el centro de Mataró (C /Tetuán, 38, esquina con C/Ramon Llull) en un entorno rode ...ado de servicios y comercios y próximo a una de las principales vías de la ciudad, que dispone de buenas comunicaciones y transporte público cercano. El edificio cuenta con un total de 17 viviendas de 1, 2, 3 y 4 dormitorios, con amplios espacios interiores y terrazas exteriores, y una planta sótano de aparcamiento con capacidad para 16 plazas de aparcamiento. El edificio ofrece el privilegio de poder vivir en el centro del municipio, con las comodidades de estar rodeado de todos los servicios y equipamientos cercanos sin necesidad de realizar grandes desplazamientos para las necesidades del día a día. Situación Mataró es la ciudad ideal para vivir. Con una situación privilegiada, entre el mar y la montaña, la capital del Maresme es una ciudad con personalidad propia, en transformación constante y con una gran calidad de vida. Una ciudad bien comunicada y con fácil acceso. Con una gran oferta comercial, rica en patrimonio arquitectónico y arqueológico y con un puerto deportivo y pesquero que abre la ciudad al mar. En definitiva, un entorno privilegiado donde vivir. Pavimentos interiores y exteriores El pavimento interior de la vivienda será de alta calidad y un diseño moderno. Es por ello que se ha optado por piezas de gres porcelánico colocado con junta mínima y rectificada de la casa KERABEN- serie Portobello o Boreal. Los zócalos serán de madera lacada de color blanco de 7 cm de espesor con canto recto a conjunto con los tapajuntas de las puertas interiores. Los pavimentos de las zonas comunes, rellanos y escaleras serán de piedra natural pulida. Carpintería interior Las puertas de acceso a las viviendas serán de seguridad y tendrán 3 puntos de cierre, refuerzo de bisagras y acabado de madera lisa y lacada blanca. Las puertas de paso serán lisas lacadas en blanco, herrajes y cerraduras de acero inoxidable. Las puertas correderas interiores (si las hay) serán también de madera lisa lacadas en blanco, con estructura metálica tipo Scrigno embebida en la pared. Las puertas de los armarios interiores, donde se alojará la maquinaria de la aerotermia, serán de DM lacadas lisas lacadas en blanco, con herrajes y tiradores de acero inoxidable. Carpintería exterior Todos los cerramientos del edificio ofrecerán el mejor sistema de aislamiento y seguridad para asegurar la máxima comodidad. Todas las ventanas y balconeras contarán con un cierre de aluminio lacado, de la marca STRUGAL o similar, con rotura de puente térmico. Para garantizar el aislamiento acústico de los ruidos procedentes de la calle, el acristalamiento de todas las ventanas será de doble luna de vidrio con cámara de aire intermedia, mejorando también el aislamiento térmico. El cierre de las aberturas de las fachadas, se realiza con persianas exteriores enrollables eléctricamente para facilitar su uso y estarán formadas por lamas rectas de aluminio. Todas las persianas serán del mismo color que los cierres de aluminio (RAL 7006). Cocinas Muebles de cocina según propuesta, con un diseño actual de muebles altos y bajos con acabado de puertas estratificado de 2 cantos rectos (color a elegir dentro de la misma gama, blanco o madera), con canto recto y cajones metálicos de extracción total con freno incorporado, y garganta del aluminio blanco como tirador. Los zócalos de los muebles serán de aluminio plata. Los frontales y el panel de trabajo estarán acabados con SILESTONE modelo GRIS NIEBLA de 2cm de espesor y aplacado de paredes igual modelo de 1,2 cm de espesor, con fregadero de acero Inoxidable empotrada bajo encimera de trabajo con grifo monomando. Las cocinas incluirán el siguiente equipamiento: Fregadero de acero inoxidable BE Línea R15 de 50x40 cm de TEKAHorno multifunción de 60 cm. Mod.:HBA512ER0 en A.Inox y vidrio negro de BOSCHMicroondas integrable con grill Mod: BEL554MS0 en A. Inox y cristal negro de BOSCH.Placa inducción 60 cm. Mod .: PID631BB3E de BOSCHCampana extractora telescópica pared 60cm. Mod .: DFT63AC50 de BOSCHGrifo monomando para fregadero Ref. 5A8360C00 modelo TARGA de ROCA. Calefacción y climatización La climatización del edificio ofrecerá equipos de generación a través de aerotermia, que permitirá dar cumplimiento a los requisitos normativos de Eficiencia Energética, y supondrá un importante ahorro en los consumos de las viviendas. Las viviendas dispondrán de un sistema de calefacción mediante suelo radiante con de conducciones de tubo de polipropileno de multi capa empotrados bajo el pavimento, para ofrecer el máximo confort durante los días fríos del invierno. La climatización del interior (aire acondicionado) de las viviendas se ejecutará mediante fan-coils, colocados sobre el falso techo del baño, y la circulación del aire, mediante conductos por encima del falso techo, y rejillas de impulsión en cada estancia. Cada vivienda dispondrá de un termostato programador situado en la sala de estar. Zonas comunes El ascensor, con acceso desde el aparcamiento en todas las plantas de viviendas, será de la casa SCHINDLER y tendrá puertas automáticas de acero inoxidable en cabina. Estará dotado de alarma. Dimensiones según Normativa de Accesibilidad. Se dotará de instalación de vídeo-portero de comunicación de las viviendas con el portal. ---- Para información más detallada, consulta la página web de Urbenia (apartado Obra Nueva). Show more

Features

Main info

Flat type: Flat
Single room count: 3
Bathroom count: 2
Built area: 126

Certificates

Consumption:
G
- KW h/m² Emission: G - Kg CO₂/m²

Qualities

Air conditioning
Elevator
furniture
Heating
Terrace

Location

Is something wrong with the Ad?

Please let us know about it so we can correct it.