€ 110 000

Casa adosada en Camarenilla

Calle Arroyo Vallehermoso, 45181 Camarenilla (Toledo), España
92 Views

Description

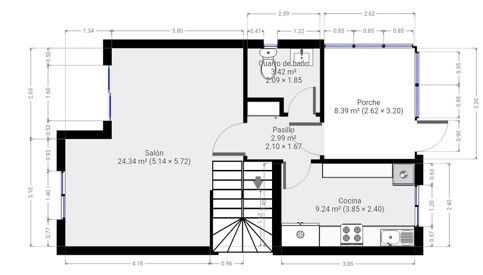
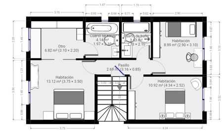
Chalet pareado de 3 plantas en el municipio de Camarenilla (Toledo), listo para entrar a vivir y disfrutar. Parcela libre 103 m2 solada y acondicionad ...a, con barbacoa, pérgola de sombreamiento en patio posterior, iluminación. Distribución: Planta baja, entrada acristalada, salón comedor con salida al patio posterior, aseo y cocina amueblada con electrodomésticos de calidad incluidos en el precio, escalera interior; Planta primera, dormitorio principal con vestidor vestido y baño en suite con bañera, 2 dormitorios secundarios con armarios empotrados y baño completo con plato de ducha; Buhardilla o bajo cubierta, sala polivalente o dormitorio existe la posibilidad de instalar un baño en esta planta y dos trasteros en la parte de menor altura. Acabados. Tarima flotante en zonas nobles, baldosa cerámica en cuartos húmedos, pintura con gotelé en color, ventanas de aluminio blanco, hojas correderas con vidrio tipo climalit y mosquiteras. Agua caliente sanitaria mediante termo acumulador eléctrico, calefacción mediante radiadores acumuladores eléctricos, aire acondicionado con bomba de calor en salón y dormitorio principal. Vivienda muy luminosa por tener orientación sur, este y norte, fresquita en verano al disponer de ventilación cruzada. Aparcamiento de superficie con techado para evitar sobrecalentamiento y las heladas. Dispone de toldos para conseguir soleamiento. Vivienda provista de rejas de seguridad en los huecos de planta baja. SIN CUOTA DE COMUNIDAD DE PROPIETARIOS. CAMARENILLA, municipio independiente de Toledo, a menos de 1 hora de Madrid y a 20 minutos de Toledo y a 10 minutos de Bargas. Con 577 habitantes censados en 2020, dispone de todos los servicios, centro de salud, centro educativo público infantil y primaria, parque infantil, pistas deportivas, piscina municipal, residencia de ancianos, supermercado, iglesia, farmacia, banco. A 10 minutos del Centro Comercial Abadía (MEDIA MARK, LEROY MERLIN, ALCAMPO, DECATHLON, TELEFONIA, RESTAURACIÓN, MODA Y COMPLEMENTOS) en Bargas. Show more

Features

Main info

House type: Townhouse
Single room count: 4
Bathroom count: 3
Built area: 149

Certificates

Consumption:
E
275 KW h/m² Emission: E 55 Kg CO₂/m²

Qualities

Air conditioning
Pantry

Location

Is something wrong with the Ad?

Please let us know about it so we can correct it.