€ 2 100 000

Casa o chalet en Los Cigarrales-La Bastida

Calle 45004 Toledo (Toledo), España
131 Views

Description

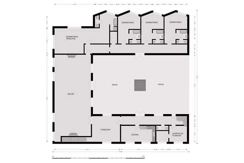
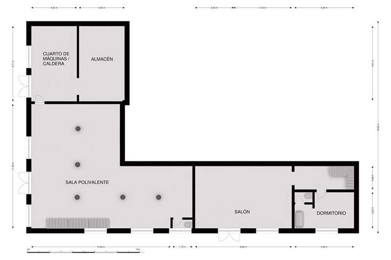
Exclusivo cigarral estratégicamente ubicado. Un refugio de paz, para disfrutar del campo con absoluta privacidad, a 5 minutos del casco histórico de T ...oledo y a una hora de Madrid. Situado en el Cerro del Emperador, junto a un meandro del río Tajo, la finca ofrece una espectacular vista del Toledo monumental. La edificación, de 860 m², está rodeada por más de cinco hectáreas de campo, donde crecen libremente olivos, enebros y otras especies locales. Su estilo arquitectónico se integra perfectamente en el entorno. El interior del edificio, destaca por sus amplios espacios y la calidad de sus materiales y terminaciones. Todas las estancias, grandes y luminosas, disfrutan de vistas al campo, al patio central o a Toledo. La construcción se distribuye en dos plantas: La planta principal se alza alrededor de un patio central de más de 250 m² y se divide en: •Una amplia cocina con office. •Un comedor de 40 m². •Un gran salón, diáfano, de 200 m², con techos altos, dos bonitas chimeneas y con acceso directo al patio central. El salón es perfecto para realizar recepciones de gran aforo. •4 dormitorios: tres grandes con baño y el dormitorio principal, de grandes dimensiones, con vestidor y baño. •Un almacén. •Un aseo. En la planta baja: •Un salón de 48 m² con acceso directo al campo. •Una habitación doble con baño. •Un espacio diáfano de 120 m², también con acceso directo al campo, al que se le puede dar cualquier uso. Actualmente se utiliza como estudio de pintura y sala polivalente. •Un aseo. •Un cuarto de calderas y un almacén. Hace veinte siglos sobre esta colina se edificaron villas romanas. Durante el periodo árabe y cristiano fueron huertas y lugares de recreo. Los Cigarrales eran antiguas casas de campo donde se pasaba el verano para protegerse del calor. En sus campos se cultivaban olivos, almendros y vides para elaborar aceite, vino y mazapanes. Fueron símbolo de prestigio y se convirtieron en lugares de reunión de citas culturales y tertulias. Han sido nombrados en la literatura por Tirso de Molina, Lope de Vega, Galdós, Unamuno, Pérez de Ayala, García Lorca... Una oportunidad única para adquirir una propiedad singular, rodeada de historia y de campo. Opciones de compra y condiciones económicas: •Construcción y parcela de 37.950 m² 2.100.000 € •Construcción y parcela de 57.950 m² 2.500.000 € •Solo parcela de 20.000 m² sin construcción 490.000 € La parcela no ha agotado su edificabilidad (0,1 m² por m² de parcela). Además del uso residencial, son posibles los usos hotelero, hostelero, sanitario, educativo, administrativo y cultural. Infórmese. Nuestros servicios no tienen ningún coste para los compradores. Show more

Features

Main info

House type: Chalet
Single room count: 5
Bathroom count: 7
Built area: 866

Certificates

Consumption:
C
92 KW h/m² Emission: C 18 Kg CO₂/m²

Qualities

Pantry
Terrace

Location

Is something wrong with the Ad?

Please let us know about it so we can correct it.