€ 4 500 / Month
Ref: 08663

Premises en San Matías - Realejo

Cuesta de Aixa, 18009 Granada (Granada), España
82 Views

Description

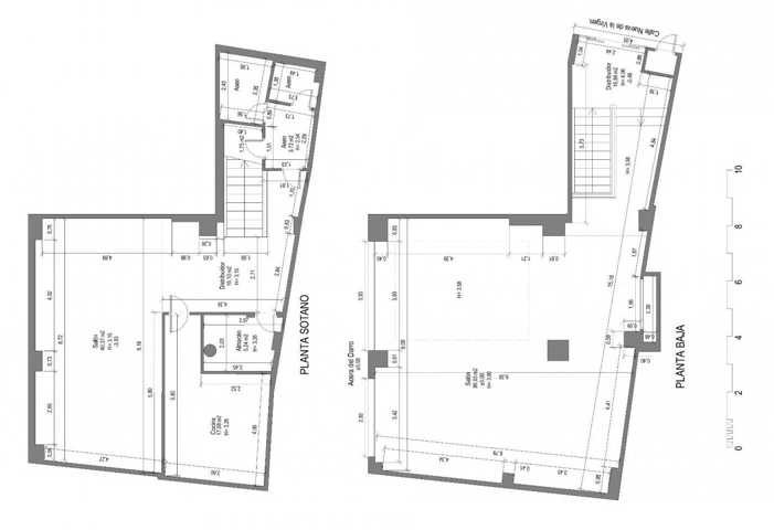
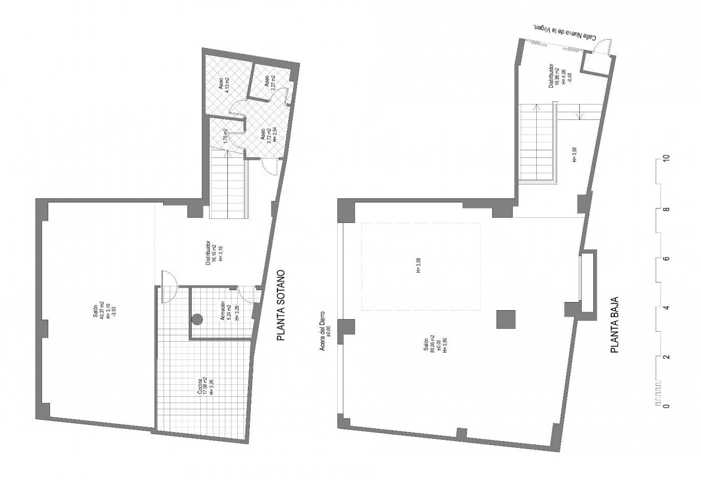
Fantástico local en Acera del Darro, frente al Corte Inglés. El local cuenta con un total de 210 m distribuidos en 110m en planta baja y otros 100 e ...n planta sótano. El local tiene posibilidad de terraza, además de contar con salida de humos. Si buscas un buen local, en una ubicación inmejorable, este es tu local. Llámanos y pide tu cita para visitarlo. REF. 08663 Show more

Features

Main info

Commercial (rent): Commercial premises
Bathroom count: 2
Built area: 210

Certificates

Consumption:
G
- KW h/m² Emission: G - Kg CO₂/m²

Location

Is something wrong with the Ad?

Please let us know about it so we can correct it.