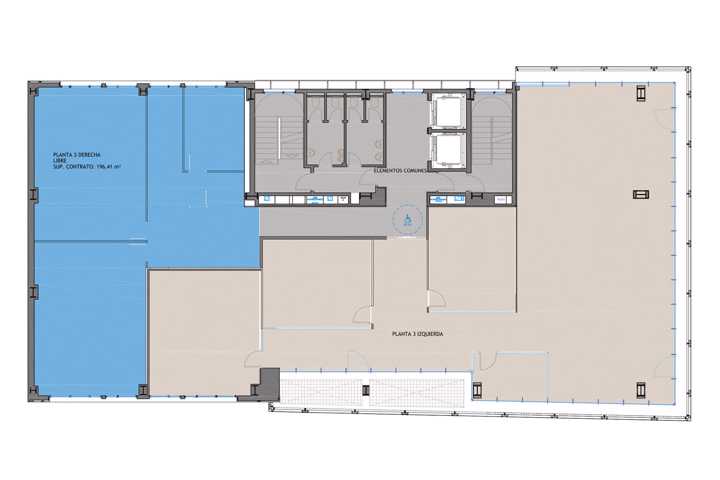
Se trata de una oficina de 196m2 en un edificio moderno y representativo de uso exclusivo oficinas, con inmejorable luminosidad natural en todas las p ...lantas.
Dispone de falso techo tipo Armstrong y suelo técnico de 12cm.
Sistema frío/calor mediante equipos autónomos.
Instalación contra incendios mediante columna seca y BIE´s.
Dispone de dos ascensores con 13 paradas.
En este edificio solo hay un contador de electricidad por lo que para poder medir el consumo de cada inquilino se han puesto contadores de energía. Debido a esto adicionalmente a la factura de gastos hay una factura de consumo de energía que sería el equivalente a la factura que le pagaría a Iberdrola si se pudiera poner un contador independiente al del edificio. Esta factura incluye el consumo de energía privativo de cada inquilino así como el de las zonas comunes.
Los gatos comunitarios corren a cargo del inquilino y son 2,60€/m2. El IBI corre a cargo del propietario.
Conserjería de 7:00 a 23:00 horas.
El edificio posee un salón de actos y un comedor común. Hay disponibilidad de plazas de garajes y trasteros.
Disponibilidad inmediata.
La oficina está muy bien comunicada por transporte público: bus 70 y 12. A pocos metros de metro Machado, líneas 3 y 8.
No deje de visitar nuestra web para valorar otras opciones.Show more
We use our own and third-party cookies, and similar technology, to remember your preferences, prepare statistics. If you continue browsing or click the "Continue browsing" button, you accept their use. Cookie policy