Maravilloso chalet con una luz espectacular a sólo veinte minutos del centro de Madrid por la carretera de Burgos (N-I), en la prestigiosa urbanizació ...n de Fuente del Fresno, junto a la Real Sociedad Hípica Española Club de Campo y frente al Real Club La Moraleja.
En una parcela de 1.127 metros cuadrados cobija un magnífico jardín diseñado por el paisajista Jesús Ibáñez con piscina privada de 61 metros cuadrados y dos coquetos cenadores muy frescos al ser de acero corten.
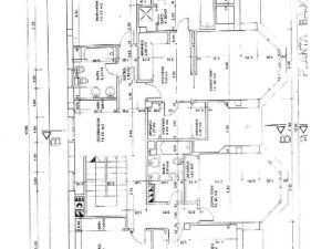
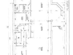
Sobre planta rectangular de 152 metros cuadrados con dos miradores en la facha sur, consta de tres plantas comunicadas por una escalera interior. La planta superior, bajo cubierta excepto los dos miradores, tiene 167 metros cuadrados construidos y se distribuye en cinco dormitorios orientados a mediodía y tres cuartos de baño. El dormitorio principal tiene vestidor y el baño en suite, igual que otro de los cuatro dormitorios restantes, uno de los cuales se utiliza como despacho.
La planta principal, de 152 metros cuadrados construidos más 17 metros cuadrados de un hermoso porche con orientación este, acoge el salón, el comedor, el cuarto de estar, la cocina con office y zona de lavado, el recibidor y un aseo de cortesía.
La planta sótano recibe luz natural gracias al patio inglés al que dan las ventanas de algunas de sus habitaciones, tiene una superficie construida de 164 metros cuadrados y se destina a garaje (con espacio para dos coches), despensa/bodega, trastero, dormitorio de servicio con baño en suite, sala de juego, dos habitaciones más y un aseo. La casa dispone de otras dos plazas de garaje exteriores y cubiertas.
Las paredes son lisas y los suelos de madera. El aire acondicionado es por conductos y la calefacción individual con un depósito de 5.000 litros de gasoil. Dispone de alarma.
CONDICIONES DEL ALQUILER:
-Una mensualidad de fianza
-Dos mensualidades como garantía adicional de pago
-Una mensualidad más IVA en concepto de gestión inmobiliaria.Show more
We use our own and third-party cookies, and similar technology, to remember your preferences, prepare statistics. If you continue browsing or click the "Continue browsing" button, you accept their use. Cookie policy