€ 66 500

Kit de paneles Tamak para vivienda de 133 m2

241 Views

Description

Kit auto montaje incluye: Ofrecemos los paneles totalmente terminados y preparados para montaje fácil. En el precio entra: Paneles exteriores de en ...tramado ligero de alta eficiencia energética Paneles interiores de entramado ligero Tejado formado por los paneles de alta eficiencia energética Pre instalaciones de corrugados según proyecto (falta solo cablear ) Ventanas PVC color blanco con TRIPLE cristal Puertas interiores de madera Acabados exteriores con mortero acrílico Acabados interiores preparados para pintar Impermeabilización del tejado con el aislamiento , ventilación y con tejas metálicas Ofrecemos más opciones: Montaje básico sin instalaciones Proyecto personalizado Cableado de electricidad según proyecto del cliente Instalación sanitaria según proyecto del cliente Paneles de suelo con gran aislamiento ( puedes ver las imágenes de paneles de suelo) Sistema de la climatización Acabados de suelo (Cerámica o parquet) Sanitarios Cocina No entra la cimentación que se realiza a base de los estudios del terreno y del proyecto Show more

Details

Pared exterior 1. Madera cepillada =145 мм. 2. Lana de roca 150мм,(ρ=45кг/м3). 3. Yeso laminado 12 мм. 4.Lamina anti-vapor 5. OSB 9 мм. 6. Peno ...polisterol 50 мм.,(ρ=25кг/м3). 7. Malla de vidrio 8. Acabado en material orgánico Pared interior 1. Madera cepillada =95 мм. 2.Lana de roca 100мм.,(ρ=35кг/м3). 3.Yeso laminado 12 мм. Panel entreplantas 1. Madera cepillada=190 мм. 2. Lana de roca 200мм 3. OSB 22 мм. 4. Yeso laminado 12 мм. Panel de tejado 1. Madera cepillada=190 мм. 2. Lana de roca 200мм. – 100мм. 3. Yeso laminado 12 мм. 4. Lamina anti-vapor 5.Lamina impermeable 6. Rastreles 40*40 мм. 7. Contrarastreles 20*100 мм. 8. Friso 15*95 мм. Tejas metálicas: Monterrey color según cliente Ventanas PVC , Perfil 3 cámaras Color blanco con triple cristal. Vierteaguas (color elegido por cliente) Puerta de entrada metálica Salidas para ventilación Vilpe(según proyecto) Corrugados para los cable * En el precio I.V.A no incluido. * Los precios son calculados en stock en Barcelona * Los precios pueden tener varios cambios, depende de la zona, hay que añadir el precio de transporte. Show more

Features

Main info

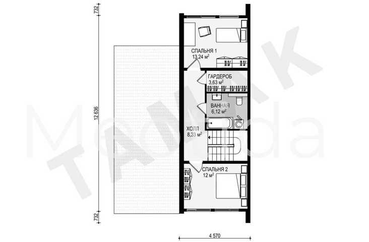
House deal: Frame house
Floor count: 2
Double room count: 2
Toilets count: 1
Bathroom count: 1
Built area: 133

Is something wrong with the Ad?

Please let us know about it so we can correct it.

Contact the advertiser