* La vivienda dispone de un práctico ascensor que comunica las 4 plantas y aporta muchísima comodidad en el día a día.
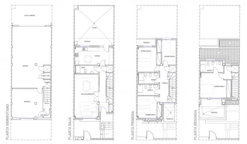
* La planta ático dispone de 4 ...2 m2 de superficie con las mismas calidades constructivas del resto de la casa: techos planos, aislamiento reforzado, calefacción, aire acondicionado, suelo de madera natural, armario empotrado, baño completo, etc. ¡No es una buhardilla, es una planta más de vivienda!
* Actualmente, en esta planta está instalado el dormitorio principal, pero según las preferencias se puede utilizar como estancia de juegos para niños, zona de hobbies para adultos, sala de estar, habitación de invitados, gimnasio o espectacular espacio para teletrabajar.
* El ascensor elimina el único inconveniente de este formato de casa que reparte sus 274 m2 en 4 plantas. Gracias al ascensor, la planta ático, que en tantas casas queda para un uso esporádico, se integra en el día a día y convierte sus metros en verdaderamente útiles.
* El patio dispone de 30 m2, está situado junto a la cocina y esto lo hace muy cómodo para utilizarlo como salón exterior de la casa. Tiene completa intimidad y su disposición permite ponerle un techo extensible de cristal que permita sacarle un rendimiento fabuloso también en los meses menos cálidos. ¡Un lujazo!
* Las terminaciones y el mantenimiento que ha tenido la vivienda permiten entrar a disfrutarla sin inversión añadida.
* Esta casa es una magnífica oportunidad cuya comercialización gestiona en exclusiva Monapart Albacete.
ES ESPECIAL POR:
* La casa tiene más de 50 m2 de zona exterior: el patio trasero, la terraza situada delante de la vivienda y otra pequeña terraza ubicada en la primera planta.
* Como el patio es grande, se puede instalar una buena piscina desmontable.
* La cocina es muy amplia y permite desayunar, comer y cenar en ella.
* En la planta semisótano hay una habitación de 14 m2 que ahora está acondicionada como biblioteca, zona de estudio y sala para reuniones con amigos.
* El garaje tiene 60 m2 y permite guardar 3 vehículos o tabicar una parte para crear una habitación para usarla como trastero.
* Tener un baño en la planta ático amplía muchísimo las posibilidades de uso de esta zona (además de poder acceder a ella mediante ascensor, claro).
* El ascensor tiene un mantenimiento muy económico.
* Está al lado del Hospital, junto al nuevo colegio de Medicina y a solo 700 m de Mercadona.Rādīt vairāk
Īpašības
Galvenā informācija
Mājas tips: Rindu māja
Vienvietīgo istabu skaits: 5
Vannas istabu skaits: 4
Apbūvēta teritorija: 275m²
Sertifikāti
Patēriņš:
G
-KW h/m²Emisija:G-Kg CO₂/m²
Kvalitātes
Apkure
Gaisa kondicionētājs
Patio
Pieliekamais
Terase
Atrašanās vieta
Vai kaut kas nav kārtībā ar sludinājumu?
Lūdzu, informējiet mūs par to, lai mēs varētu to izlabot.
Mēs izmantojam mūsu pašu un trešo pušu sīkfailus un līdzīgas tehnoloģijas, lai atcerētos jūsu preferences, sagatavotu statistiku. Ja turpināsiet pārlūkošanu vai noklikšķiniet uz pogas "Turpināt pārlūkošanu", jūs piekrītat to lietošanai. Sīkdatņu politika