€ 525 000

Dúplex en Conde Orgaz - Piovera

Calle de Ulises, 28043 Madrid (Madrid), España
51 Vistas

Descripción

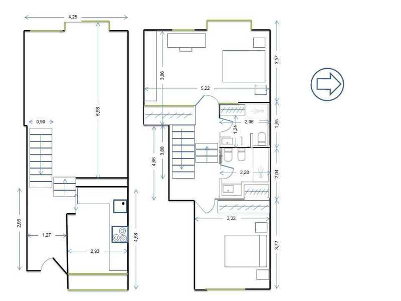
Magnifico dúplex exterior, muy confortable y luminoso, en urbanización privada entre Arturo Soria y barrio del Conde de Orgaz, situado en la calle de ...Ulises y muy próximo al Liceo Frances. Residencial de 50 vecinos con plaza de Garaje cubierta, zona ajardinada y servicio de Conserjería. Vivienda muy luminosa y tranquila, dos plantas con orientación Este / Oeste, distribuida: PLANTA 3 - Cocina independiente equipada con electrodomésticos, con tendedero exterior -10m², luminoso salón 5,50m x 4,20m, con mirador exterior de orientación Oeste y armario empotrado, PLANTA ALTA - Originalmente con 3 dormitorios, actualmente con 2 dormitorios tras la reforma, con amplios armarios empotrados y 2 cuartos de baño completos. La vivienda dispone de Caldera individual de Gas Natural, con instalación de Aire Acondicionado en el salón y dormitorio principal, cerramientos de aluminio CLIMALIT, suelos cerámicos y pintura de gotelé, en buen estado de conservación general, se hace conveniente una mejora estética. Zona muy consolidada con todos los servicios necesarios cercanos: colegios públicos y privados, San José del Parque, Montessori, Sta. Francisca Javier Cabrini, Nuestra Señora Hispanidad, etc. Parques y jardines Juan Pablo II, Juan Carlos I y un magnifico bulevar de Arturo Soria, centro de salud Emigrantes, centro de salud Vicente Muzas, VITHAS nuestra Señora de América, Clínica Belén, centros comerciales Arturo Soria Plaza, Palacio de Hielo, Gran vía Hortaleza y tiendas pequeño comercio Muy bien comunicada por transporte publico y privado con muy rápidos accesos a M30, M40 y N-II, con la estación de Metro Arturo Soria en la puerta y numerosas paradas de autobuses urbanos y no mas 15mn del Aeropuerto Internacional Adolfo Suarez - Madrid Barajas. En definitiva una magnifica inversión en calidad de vida. Mostrar más

Caracteristicas

Información principal

Tipo de piso: Dúplex

Ubicación

¿Hay algún error en el anuncio?

Cuéntanos qué has visto para poder corregirlo.