€ 655 000

Piso en Diagonal Mar i el Front Marítim del Poblenou

Carrer de Llull, 08019 Barcelona (Barcelona), Espanya
54 Vistas

Descripción

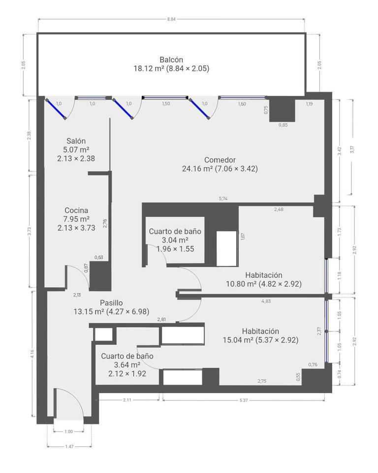
Piso de 124m2 en tercera planta con orientación noroeste, consta de recibidor, salón-comedor con salida a terraza de 18m2, cocina, 2 habitaciones dobl ...es y 2 baño completos. Aire acondicionado y bomba calor por conductos. Dispone de plaza de aparcamiento incluida en el precio y servicio de conserjería. Complejo residencial de Alto Standing en la privilegiada zona de Diagonal Mar - Front Maritim. El conjunto residencial se encuentra junto al mar y rodeado de grandes parques con preciosos jardines. Este complejo se compone de viviendas totalmente rehabilitadas de 1, 2 y 3 habitaciones con grandes terrazas y vistas al mar. Cuenta con una amplia y privada zona comunitaria con espectacular piscina, zona de juegos para niños, mini golf y jardines. Collective.Life.Experience.Makers Nuevos nidos: Madrid - Las Palmas - Empordà Encuentra más en http://inmuebles.colibree.com Mostrar más

Caracteristicas

Información principal

Tipo de piso: Piso
Planta: 3
Nº de habitaciones simples: 2
Nº de baños: 2
Metros construidos: 124

Certificado energético

Consumo:
D
71 KW h/m² Emisiones: D 15 Kg CO₂/m²

Calidades

Aire acondicionado
Ascensor
Balcón
Calefacción
Jardín
Piscina comunitaria
Piscina propia
Terraza

Ubicación

¿Hay algún error en el anuncio?

Cuéntanos qué has visto para poder corregirlo.