€ 203 000

Piso en Santa Eugènia

Carrer de Tomàs Carreras i Artau, 17006 Girona (Girona), Espanya
67 Vistas

Descripción

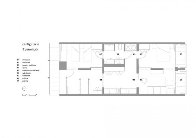
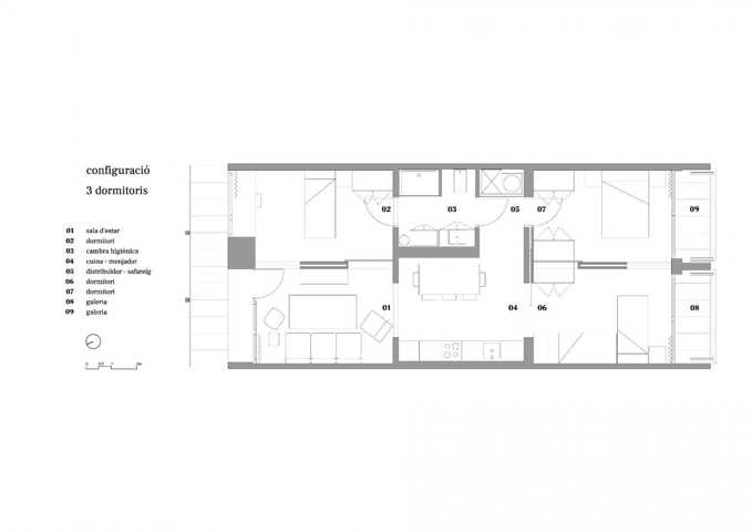
UN NUEVO CONCEPTO de VIVIENDA EFICIENTE Y SOSTENIBLE El piso se encuentra en la planta tercera y tiene una distribución flexible, que puede ser de ...1, 2 o 3 habitaciones. Los espacios son amplios, disponen de grandes aperturas y tienen mucha luz. El acceso es por la fachada norte. La distribución se basa en la ubicación de la cocina y el baño en la zona central. A partir de aquí hay cuatro estancias de 12m2 que se pueden conectar o independizar sin hacer obras según el uso que se le quiera dar: dormitorio, estudio, sala, ... Al lado sur hay dos galerías de 2.85 m2 que son terrazas en verano y tribunas en invierno. Se trata de una vivienda saludable gracias a los materiales orgánicos, entre los cuales hay la madera, que regula la humedad interior. Los sistemas instalados de aerotermia y la ventilación continua con recuperador de calor garantizan la calidad del aire interior. Dispone de la máxima calificación energética (A), con ventilación cruzada y un espacio semi-exterior que proporciona sombra en verano (terraza con persiana de cuerda) y calor en invierno (galería a sur). Se trata de un edificio de Consumo Casi Nulo. Los acabados son de alta calidad, los cierres de altas prestaciones y los vidrios de baja emisión. Hay opción de aparcamiento dentro del mismo edificio a partir de 15.500 €. El emplazamiento del edificio ofrece una óptima conectividad: carril bici a pie de calle, Girocleta y paradas de bus a 3 minutos, zona para aparcar bicicletas en el mismo edificio . En el entorno más próximo hay zonas verdes y rutas bicicleta. La salida de la autopista AP7 es a 5 min en coche y la estación de tren/buzo/AVE a 15 minutos a pie. La zona cuenta con centros educativas, deportivos, culturales y sanitarios ( Hospital de Sta. Caterina, futuro Hospital Universitario Josep Trueta y campus sanitario y nueva Clínica Girona). ES ESPECIAL POR: Los amplios ventanales hacen que la vivienda tenga una intensa relación con el exterior. Las largas visuales de fachada a fachada dan mucha amplitud interior. Es muy interesante el espacio que se crea a la galería de la fachada sur, dependiente de la época del año: en verano es una terraza con sombra y en invierno un captador solar (arquitectura bioclimática). Los autores son Bosch Capdeferro Arquitectura. Con esta promoción han ganado la XV Bienal Española de Arquitectura y Urbanismo y han sido finalistas en los premios FAD 2021. Mostrar más

Caracteristicas

Información principal

Tipo de piso: Piso
Planta: 3
Nº de habitaciones simples: 3
Nº de baños: 1
Metros construidos: 85

Certificado energético

Consumo:
A
28 KW h/m² Emisiones: A 4 Kg CO₂/m²

Calidades

Aire acondicionado
Ascensor
Calefacción
Terraza

Ubicación

¿Hay algún error en el anuncio?

Cuéntanos qué has visto para poder corregirlo.