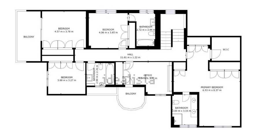
Chalet independiente en Las Matas, con una superficie de 451 m² construidos en parcela de 500 m². Jardín consolidado con piscina y zona ajardinada co ...n riego automático. Vivienda muy luminosa, con amplias estancias. Magnífica distribución diseñada en dos plantas principales + Buhardilla. Dispone de 5 dormitorios, 3 baños y 1 aseo. Distribución de la planta principal: Amplio hall distribuidor que divide la planta principal en dos alas: En una de ellas accedemos un amplio salón comedor, con amplios ventanales y acceso al porche, jardín y piscina. En el otro ala: Sala de estar (que puede ser otro dormitorio), aseo de cortesía, amplia cocina equipada, acceso al garaje, con capacidad para dos coches, y acceso a cuarto de lavado y despensa. En esta estancia se ubica un ascensor que comunica con el dormitorio principal en la primera planta. En la misma accedemos al amplio dormitorio principal con dos frentes de armarios y baño completo en suite. Pasillo distribuidor a 4 dormitorios dobles. Uno de ellos en suite con baño completo y otros dos disponen de amplia terraza. La buhardilla, dividida en tres estancias, está acondicionada como zona de recreo, almacenamiento y posibilidad de otro dormitorio. Vivienda en buen estado de conservación. Suelos de mármol y tarima en los dormitorios. Carpintería exterior en aluminio con climalit, con ventanas oscilobatientes. Carpintería interior en madera lacada en blanco. Dispone de Aire Acondicionado en 5 estancias de la vivienda. Calefacción de gas Natural. Todos los armarios vestidos.
Ubicación en zona residencial próxima a todos los servicios del casco urbano de Las Matas. Zona consolidada con varias alternativas de centros educativos, restauración, farmacias, polideportivo, parques y zonas verdes. Parada de bus, línea 620 y 622, y Estación de Cercanías RENFE Las Matas, a 800 mts. Conexión con la Autopista A-6 (Madrid-La Coruña) a 4 minutos en coche.
Mostrar más
Utilizamos cookies propias y de terceros, y tecnología similar, para recordar tus preferencias, elaborar estadísticas. Si continúas navegando o haces clic en el botón "Seguir navegando", aceptas su uso. Política de cookies