€ 510 000

Casa o chalet en Piverd - Vila-Seca - Bruguerol

Avinguda de Pompeu Fabra, 17213 Begur (Girona), Espanya
76 Vistas

Descripción

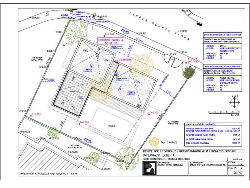
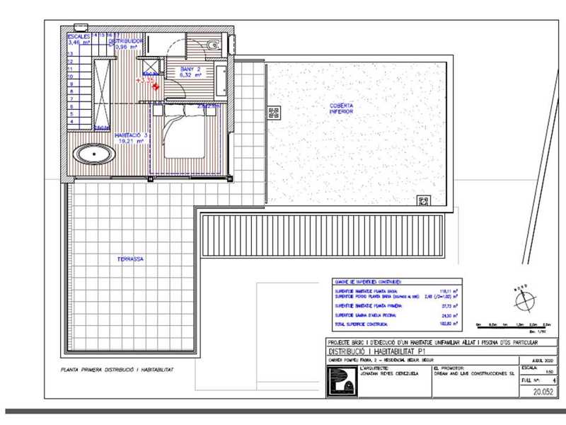
Obra Nueva. Casa en construcción de tres dormitorios, dos cuartos de baño, piscina y parking. Esta magnífica casa de obra nueva consta de 182 metros ...cuadrados dividido en dos plantas. La planta baja consta de dos dormitorios, un cuarto de baño, cocina y salón comedor con porche. La primera planta conta de suite con cuarto de baño y gran terraza solarium. La parcela consta de 404 metros cuadrados y se entrega con piscina y plaza de parking privado. Parcela ubicada a tan sólo 7 minutos en coche de la playa y a 6 del centro de pueblo. Gran oportunidad de estrenar casa en el uno de los enclaves más bonitos de la Costa Brava. Llama ahora y ven a verlo! Solicita más información en BLANES. COM. PUNT IMMOBILIARI. El equipo comercial más amplio de la Costa Brava Sur. Compra y vende con total transparencia y seguridad. En cumplimiento de la ley 3/2917 del 13 de febrero de 2018 del CODIGO CIVIL DE CATALUNYA, por el que se aprueba el Reglamento de Información al Consumidor en la compraventa y arrendamiento de viviendas en CATALUÑA, se informa al cliente que los gastos notariales, registrales e impuestos que le sean de aplicación ( ITP ó IVA + AJD ) y otros gastos inherentes a la compraventa no están incluidos en el precio. Mostrar más

Caracteristicas

Información principal

Tipo de casa: Chalet
Nº de habitaciones simples: 3
Nº de baños: 2
Metros construidos: 182

Información adicional

Orientación: Sur

Certificado energético

Consumo:
G
- KW h/m² Emisiones: G - Kg CO₂/m²

Calidades

Aire acondicionado
Calefacción
Jardín
Terraza

Ubicación

¿Hay algún error en el anuncio?

Cuéntanos qué has visto para poder corregirlo.