€ 590 000
№: 6795

Casa o chalet en Plentzia

Barrio 48620 Plencia (Vizcaya), España
71 Просмотры

Описание

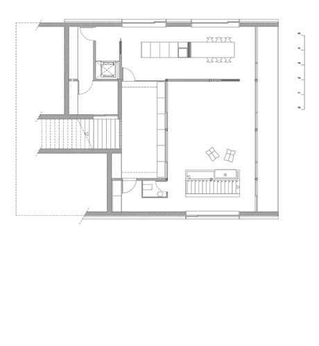
En la urbanización “El Abanico”, entre la costa y la localidad vizcaína de Plentzia, en una ladera sur y con unas vistas inmejorables a la ría y al va ...lle que forma la misma, tenemos dos viviendas unifamiliares independientes para ser vendidas de manera conjunta o individual.  Estas viviendas han sido diseñadas por el prestigioso estudio de arquitectura AV62 ( Toño Foraster ), respetando en todo momento el entorno natural privilegiado en el que se ubican. Desde la cubierta ajardinada y a través de un patio central accedemos a la zona de día de la vivienda- zona de estar, comedor, cocina -.El salón dispone de chimenea y  la cocina ha sido diseñada por - Bulthaup-, una despensa y aseo constituyen esta planta principal. En la planta inferior tenemos los dormitorios y servicios.Una habitación principal en suite con vestidor y otras dos habitaciones y un baño. Desde los dormitorios salimos a una terraza exterior y accedemos al jardín, con orientación sur . En la cubierta y a la entrada se encuentra el garaje,reclamando  la importancia que tiene pues él, el coche, y no otro, hace posible la vida “civilizada” en este revalorizado entorno natural.Tiene capacidad para dos coches. En la cara este y oeste están las ventanas que  cumplen su función de iluminación natural, ventilación,... La calefacción es de suelo radiante, las viviendas están domotizadas y disponen de aspiración centralizada. Se pueden comprar todo el complejo, ambas viviendas-1.100.00€ - o por separado.  Si necesite más información,llámenos 944 802 997.   Показать ещё

Особенности

Основная информация

Тип дома: Шале
Количество односпальных комнат: 3
Количество ванных: 2
Площадь постройки: 330 м²

Дополнительная информация

Ориентация: Юг

Сертификаты

Потребление:
G
- кВт·ч/м² Выбросы: G - кг CO₂/м²

Качество

Балкон
Лифт
Отопление
Сад
Собственный бассейн
Терраса

Тип среды

Детские площадки

Местоположение

Проблема с объявлением?

Сообщите нам, чтобы мы могли это исправить.