€ 190 000
№: Manyee-12959

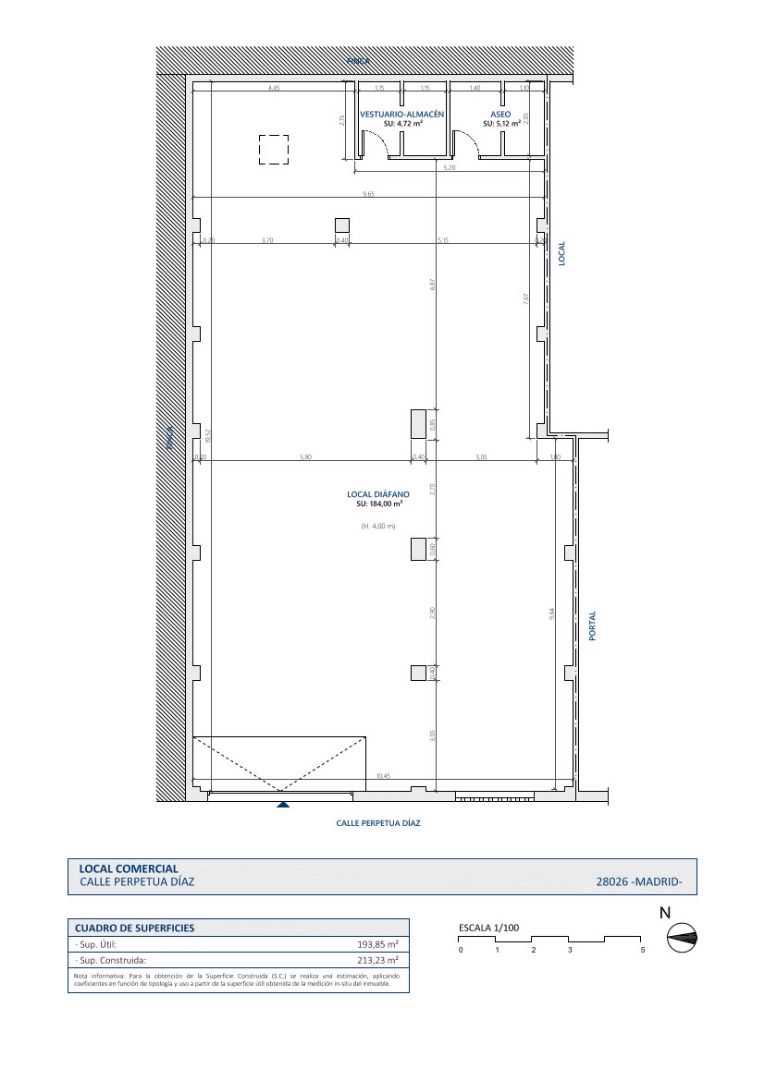
Nave industrial en Pradolongo

Calle de Perpetua Díaz, 28026 Madrid (Madrid), España
76 Просмотры

Описание

Magnifica Nave-Local diáfano de 222 m2 construidos. Ideal como negocio, almacén o parking ya que dispone de vado. Altura de techo 4 m. Ver vídeo al fi ...nal de las fotos. NO COBRAMOS COMISIÓN AL COMPRADOR Local con amplia fachada de aprox. 9 m. , entrada con vado, y con posibilidad de apertura del frente para hacer un escaparate. La altura del techo, de 4 m. , posibilita sacar una planta superior destinado a uso de oficina, almacén, dormitorio, etc. También tiene la posibilidad de habilitar la nave para uso de loft y/o taller. El local requiere reforma total, según las necesidades. IBI 242.45 GASTOS DE COMUNIDAD 48€/mes Ofrecemos un proyecto de reforma, totalmente opcional, para uso mixto de vivienda y exposición/oficina. Dicha reforma puede adaptarse a las necesidades del interesado y ser al mismo tiempo financiado integrándose en la hipoteca, que nosotros ayudaríamos a conseguir. TRANSPORTE BUS: Marcelo Usera-Gabriel Usera a 100m - L 47, 247, N15 Rafaela Ybarra-Marcelo Usera a 200 m - N15 Pza. Del Hidrogeno y Dolores Barranco a 200 m - L6 Metro Usera a 450 m. - L6 Metro e Intercambiador Plaza Elíptica a 700 m - L6 y L11 ALREDEDORES: Mercado Municipal de a Usera 365 m C. C. Plaza Río 2 a 890 m Junta Municipal de Distrito. Usera a 290 Centro de Salud Joaquín Rodrigo 370 m. Hospital 12 de Octubre a 1 Km. Comisaría a 450 m. Показать ещё

Особенности

Основная информация

Коммерческая (покупка): Склад
Площадь постройки: 222 м²

Сертификаты

Потребление:
G
- кВт·ч/м² Выбросы: G - кг CO₂/м²

Местоположение

Проблема с объявлением?

Сообщите нам, чтобы мы могли это исправить.