Este terreno urbanizable se encuentra en la zona de Mas Coll con uno de los paisajes más hermosos y tranquilos de Alella con vistas al mar y buena ori ...entación.
El terreno tiene 1224 m2, fue aplanado en parte para hacer los cimientos y la estructura de una casa con piscina de 450m2 con posibilidad de añadir 300m2 más a la vivienda.
Se vende con el proyecto de un prestigioso arquitecto- interiorista y la Licencia de Obras incluida en el precio.
El proyecto de la casa es muy singular y bonito se compone de 4 plantas:
1.- Planta Sótano consta de garaje con capacidad para varios coches. Lavadero y sala polivalente.
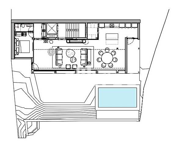
2.- Planta Baja: Gran salón-comedor con cocina con vistas con salida al porche y jardín con piscina. En la misma planta también encontramos un baño, un trastero y la sala de máquinas.
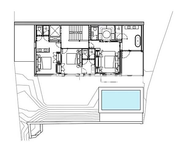
3.- Planta Primera: se compone de 3 suites con grandes baños, vestidores y armarios empotrados con salida a terraza.
4.- Planta Cubierta: encontramos, una sala almacén, un gran baño con ducha y vestidor que da acceso a la sala de sauna. Por esta planta también se accede a una cocina exterior dentro un porche cubierto y anexa encontramos una gran terraza con vistas al mar.
La casa se ha diseñado para estar rodeada de un frondoso jardín mediterráneo.
Si se desea la propiedad dispone también de constructor y promotor para llevar tanto la construcción cómo la gestión de la obra.
Collective.Life.Experience.Makers
Nuevos nidos: Madrid - Las Palmas - Empordà
Encuentra más en http://inmuebles.colibree.comПоказать ещё
Мы используем собственные и сторонние файлы cookie и аналогичные технологии для запоминания ваших предпочтений, подготовки статистики. Если вы продолжите просмотр или нажмете кнопку «Продолжить просмотр», вы принимаете их использование. Политика cookies